La concesión del primer premio en este certamen puede suponer la adjudicación de la redacción proyecto
El límite que se les puso a las empresas era que la obra que propusieran no sobrepasara los 1,8 millones
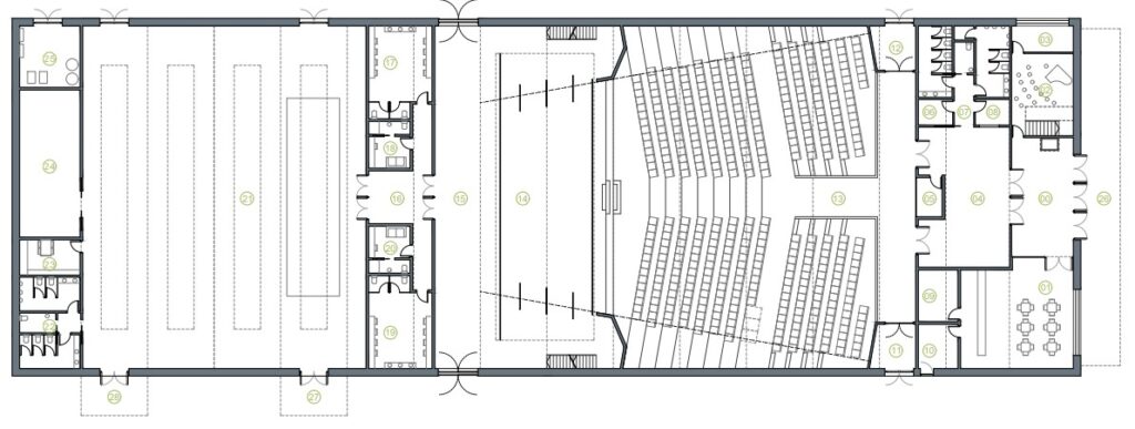
Fácil, sencillo y muy vinculado a lo que podría ser. El proyecto denominado Feria, presentado por el estudio AD OLMO – ARQUITECTURE BY DEL OLMO, con sede en la avenida Cardenal Cisneros de Palencia, ha sido el elegido por el jurado convocado por el Ayuntamiento de Saldaña, como el ganador del concurso de ideas para la remodelación del antiguo ferial de la capital de La Vega.
Un documento, que ha sido premiado con 6.000 euros, y que además podría darle al estudio palentino el contrato para la redacción del proyecto en sí, así como la dirección de la obra durante su ejecución, según se establece en las bases del concurso. Una adjudicación que, se indica públicamente, se hará por un procedimiento negociado. El montante de la redacción del proyecto detallado, lo presentado al concurso es solo una descripción somera, y dirección del proyecto podría conllevar un montante de hasta 65.082 euros.
En la descripción del proyecto se puede leer que se logra «dar una segunda vida al inmueble con una rehabilitación integral del espacio ferial primigenio, preservando y potenciando su estructura original de arcos de hormigón y pilares, elementos icónicos del edificio. Estos componentes estructurales no solo ofrecen un valor estético, sino que también simbolizan la solidez y longevidad del espacio, así como el recuerdo de su uso inicial. Se prioriza la conservación de estos elementos como parte del enfoque sostenible del proyecto, reduciendo la necesidad de utilización de nuevos materiales».
Una de las intervenciones más importantes «será el desmontaje de la antigua cubierta de fibrocemento, sustituida por una cubierta moderna y eficiente conformada por panel sándwich y material de cobertura de zinc-titanio. En los nuevos volúmenes proyectados, que albergan la caja escénica y el existente correspondiente al acceso principal tras la rehabilitación se incluye una dotación fotovoltáica con más de 420m2 de superficie de paneles, para un intento de consumo con huella de carbono cero. Se han diseñado espacios interiores flexibles que pueden transformarse según las necesidades de eventos, exposiciones o ferias»
AD Olmo ha firmado en Palencia proyectos como el de la rehabilitación del patio del Teatro Principal de la capital en una sala de artes.
Formaban parte del jurado que evaluó los proyectos presentados un grupo de arquitectos: el designado por el Colegio Oficial de Arquitectos de León, Delegación de Palencia, Roberto Maestro Cancho; el arquitecto de reconocido prestigio designado por la Corporación Municipal, Álvaro Gutiérrez Baños; el arquitecto designado por la Diputación Provincial de Palencia, Javier Puentes Vallejo; la arquitecta designada por la Junta de Castilla y León. María Jesús Sevilla Mantecón y el arquitecto técnico municipal de Saldaña, Vicente Noriega Maestro. Igualmente, participaron el alcalde de la localidad, Adolfo Palacios; la concejal Asuntos Sociales, Cultura, Sanidad y Educación, Silvia Polanco Gutiérrez y un representante del resto de grupos pertenecientes a la Corporación Local (PSOE y VOX), en este caso, Jesús Miguel González Rodríguez (PSOE), así como un representante de las Asociaciones Culturales con sede en Saldaña. En concreto Jesús Ignacio González Sánchez (Grupo de Teatro “La Bicicleta”).

Otros premios
El merecedor del segundo premio fue el proyecto Una feria un parque, que, tras abrir el sobre con el nombre de los redactores, resultó ser de Mario Galiana Liras y German Müler Calace – Atelier Atlántico. Para ellos, los 1.500 euros del segundo premio.
Los otros tres proyectos presentados y que han sido gratificados con mil euros han sido los de Juan Alberto Martínez Peña; Susana Garrido Calvo y Arias Garrido Arquitectos; y Pilar Diez Rodríguez.
El proyecto marco, hasta 1,8 millones, y con un auditorio
El concurso fue convocado a mediados del pasado verano y a los participantes se les daba carta blanca para devolver un uso decente a este espacio. La única limitación era que la obra que proyectasen no superara los 1,8 millones. Con ese dinero, los concursantes debían afrontar, en lo que al edificio se refiere, una antigua nave en la que antaño se llevaba a cabo la Feria de la Vaca Frisona, “su rehabilitación, integrando y resolviendo los accesos al edificio desde la Avda. Constitución, compatibilizando el carácter de espacio libre que ostentan y la obligación de mantener los árboles, con la necesaria urbanización del ámbito y solución de vialidad del entorno”.
Pero no sólo se trata de dar un lavado de cara el edificio y sus anexos. Porque el Ayuntamiento, en la convocatoria del concurso de ideas, explica que “se necesitan espacios dirigidos a la realización de las ferias más importantes que se celebran en el municipio”.
Pero mirando al conjunto del municipio y la comarca, desde el Ayuntamiento de Saldaña han advertido que los espacios para la vida cultural provocan estrecheces. Por ejemplo, la sala de la Biblioteca, apenas llega a las 200 localidades. Por ello, el concurso establecía que “es de vital importancia para este Municipio, poder contar con un auditorio polivalente, con en torno a 400 plazas, en el que se pueda llevar a cabo la variada programación cultural y albergar los eventos, conciertos y puesta en escena de las obras que programan las distintas asociaciones culturales que activan la vida social de nuestros vecinos”.
Pero es importante, destacan desde Saldaña, que ese nuevo ferial sea modular. Que se pueda usar una parte sin afectar a otras. “El proyecto planteará una distribución no cerrada, de forma que los distintos espacios que se generen puedan acomodarse a usos diversos. La compartimentación tendrá en cuenta la posibilidad de variar la capacidad de las estancias, en previsión de la variación que futuros eventos puedan demandar en cuanto a ocupación, aforo y programación horaria. Ha de primar la versatilidad en la concepción de la utilización del edificio”.
Una sectorización que deberá ser casi imprescindible en el caso de la zona de cafetería o restauración, para poder ser utilizada de forma casi independiente del resto del feria.











