El Consistorio palentino pretende la Rehabilitación Energética del Hotel y Museo y la renovación integral del Centro de Cultura
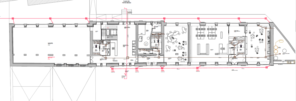
El Ayuntamiento de Barruelo de Santullán ha concurrido a la línea de infraestructuras para municipios incluidos en los convenios de Transición Justa, con dos proyectos. El primero de ellos, con un importe superior a los 900.000 euros, supondría la reforma integral del Centro Cultural. En este sentido, se plantea habilitar un Centro Juvenil, una nueva Ludoteca, ampliación de la guardería, mejora de los accesos y de la eficiencia energética, biblioteca digital, entre otros espacios.
El alcalde explica que se trata de una convocatoria “por concurrencia competitiva, al igual que ocurrió con la que financió el proyecto de rehabilitación integral de la Antigua Escuela de Artes y Oficios, y esperamos tener la misma suerte, siendo conscientes que es difícil, ya que en esta convocatoria solo hay 25 millones para toda España”.
En esta actuación, incluida en la línea 1, se pretende “aprovechar los espacios existentes, conseguir un edificio digital y energéticamente eficiente, y así lo hemos reflejado en el proyecto en el que llevamos meses trabajando”, destaca el regidor.
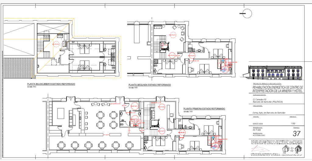
En la línea dos, se ha concurrido con un proyecto superior al 1.700.000 euros, para la rehabilitación energética del Centro de Interpretación de la Minería y el Hotel.
“Estamos ante un edificio que requiere de adaptaciones y mejoras, ya que la última reforma se llevó a cabo hace más de 25 años”, relata Cristian Delgado. El alcalde considera que “requerimos de espacios adaptados que atiendan las necesidades actuales de nuestra localidad, y sobre todo, que presten un servicio óptimo a los turistas que se acercan hasta nuestra localidad”.
Desde el ejecutivo local revelan que “llevamos inmersos meses en estos proyectos que, esperemos, lleguen a ser financiados. De lo contrario sería complicado acometer las actuaciones de forma integral, por lo que buscaríamos financiación por fases”. El alcalde destaca que “toca esperar, pero el trabajo previo, ya está hecho, y hemos concurrido en tiempo y forma a la convocatoria”.








