Noticias publicadas el 25 de febrero de 2023
Una joven de 19 años y dos varones, heridos en un accidente por alcance en Quintana del Puente Tres personas resultaron esta tarde heridas de diversa consideración, en un accidente de tráfico entre un turismo y un camión en el kilómetro 56 de la autovía A-62, en sentido Portugal, a la altura de Quintana […]
El Ciclo de Actividades por la Igualdad y Contra la Violencia de Género en Herrera de Pisuerga, que ha comenzado este fin de semana, se prolongará hasta el 11 de marzo a propósito del 8M Herrera de Pisuerga prolongará sus actividades de concienciación contra la violencia de género y a favor de la igualdad entre […]
La Escuela Oficial de Idiomas, con sede en Palencia, Guardo y Aguilar de Campoo, abre el periodo de matrícula libre del 27 de febrero al 3 de marzo Noticia relacionada: Entrevista a la directora de la EOI, Teresa de Prado La Escuela Oficial de Idiomas abre el plazo de matrícula libre durante esta semana, entre […]
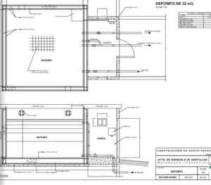
La adjudicación se realizará durante la primera semana de marzo, por valor cercano a los 20.000 euros Barruelo de Santullán construirá un nuevo depósito de agua potable en Matabuena, con una inversión cercana a los 20.000 euros. El Ayuntamiento ha publicado la licitación de la obra, que se adjudicará durante la primera semana de marzo. […]
Esta prueba de relevos ultrafondo va en beneficio de Mundo Azul Palencia y el atleta palentino David Ontaneda correrá las 48 horas sin parar en este circuito diseñado en el Parque del Salón El primer teniente de alcalde de Palencia, Alfonso Polanco y el concejal de Deportes, Víctor Torres, han presentado esta mañana el reto […]
La Diputación de Palencia y el Itagra realizan pruebas con determinadas variedades y especies para analizar su nivel de producción y viabilidad en Tierra de Campos David Herrero / ICAL La Diputación de Palencia y el Centro Tecnológico Agrario y Agroalimentario (Itagra) colaboran de manera conjunta para apostar por nuevas variedades que puedan implantarse en […]
Se han realizado 160 actuaciones agrupadas en 7 líneas de intervención El Consejo Provincial de la Mujer se reunió ayer para dar cuenta de la evolución del IV Plan de Igualdad de Oportunidades entre Hombres y Mujeres y contra la Violencia de Género, en el cual se han realizado 160 actuaciones ejecutadas que se definen en […]
La recién constituida asociación APAC une a las familias palentinas con hijas e hijos con capacidades intelectuales, talentos especiales y superdotación, a fin de crear comunidad y dar soporte a sus necesidades educativas «Mamá, he dejado el examen de Sociales en blanco. Me sé los temas perfectamente, ¿por qué tengo que demostrarlo?». Convivir con un […]





