Cervera se lanza con el restaurante sobre el embalse de Ruesga, pero renuncia, por ahora, al ‘terraceo’

presa Ruesga
Embalse de Ruesga.

El Ayuntamiento norteño adapta el proyecto de creación de un espacio hostelero a la disponibilidad económica

Paso a paso y poco a poco, en la medida de las posibilidades y la disponibilidad económica. El Ayuntamiento de Cervera de Pisuerga lleva tiempo planificando aumentar la oferta hostelera en su municipio, aprovechando su entorno pero también las actuaciones de otras administraciones para hacer aún más apetecible sus recursos. Por ejemplo, un nuevo establecimiento hostelero junto al embalse de Ruesga, casi al pie de donde arranca (o terminará) la senda circular planificada por la Fundación Patrimonio Natural de la Junta de Castilla y León.

Una nueva ruta por la Montaña Palentina: Ruesga cierra su círculo con pasarelas y voladizos sobre el pantano

Si hace unos meses el Ayuntamiento cerverano lo que hizo fue exponer públicamente el proyecto para levantar un restaurante en el Pantano de Ruesga, ahora lo que acaba de hacer es sacar ya a concurso la construcción del mismo, aunque con diferencias entre lo expuesto el pasado marzo y el proyecto que se ejecutará en los próximos meses por hasta 214.715,64 euros (IVA incluido).

Cervera proyecta más ‘terraceo’ sobre el embalse de Ruesga

Unas diferencias que se verán desde el exterior. Desde la distancia. Porque el Ayuntamiento, se ajusta a lo que podrá realizar con las ayudas que tiene concedidas, se centrará en lo básico y dejará para más adelante lo supérfluo, aunque también le restará en parte encanto al proyecto «por ahora»: las terrazas en plural.

Porque en el proyecto original se contemplaba la construcción de varios espacios en terraza a diferentes alturas, acomodándose al terreno natural para la colocación de veladores, mesas, sillas desde los que disfrutar del paisaje mientras se hacía uso de los servicios de restauración.

Pero en lo que se llevará a cabo en los proximos meses, esas estancias de obra se han borrado, modificando la estructura del edificio para generar en un espacio antes cerrado una terraza cubierta de unos 54 metros cuadrados, con un frente abierto y sin cerramiento hacia el pantano. Este espacio hará las veces de recepción para el local. Desaparecen así las terrazas totalmente abiertas.

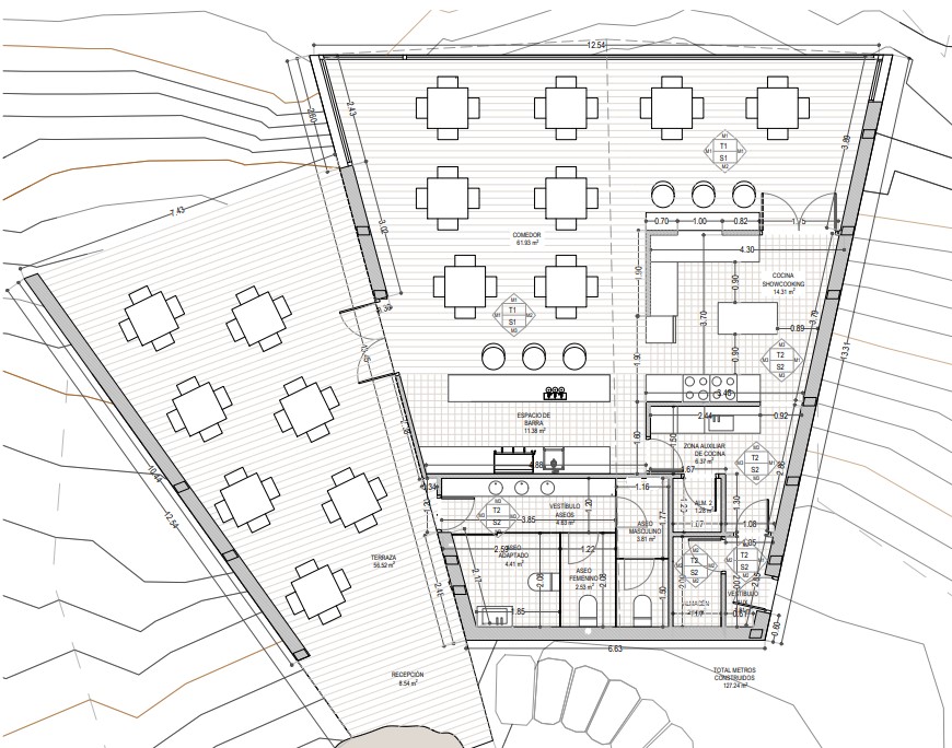
Plano de diseño del restaurante junto al embalse de Ruesga
Plano del futuro restaurante en el embalse de Ruesga, Cervera de Pisuerga.
Plano original del proyecto presentado en marzo de 2025 y en el que se aprecian los diferentes volúmenes de las terrazas.

Ahora se centra el proyecto en el edificio principal que tendrá al que se llegará por un camino de acceso preexistente, tendrá varias piezas donde se encuentra todos los usos principales como son la cocina, los aseos y la zona destinada al comedor, todo ello en 127 metros cuadrados y con un gran ventanal hacia el embalse.

Alzado norte del nuevo restaurante junto al embalse de Ruesga
Vista del alzado norte del nuevo restaurante en Cervera de Pisuerga.

En el diseño del edificio se emplean materiales tradicionales de la arquitectura de la zona, principalmente piedra y madera. «En todo momento se busca la interacción entre el paisaje y los actos que se realicen en los diferentes espacios del edificio, en definitiva, hacer que el edificio sea parte del paisaje y que este se meta dentro del edificio. La propuesta reconoce el alto valor paisajístico y ambiental que tiene el sector, por lo que es fundamental preservarla biodiversidad integrando el paisaje en las áreas edificadas, reducir, de forma adecuada, los movimientos de tierra minimizando el impacto en el territorio», se puede leer en el proyecto.

Tal y como confirmaron desde el Ayuntamiento de Cervera, la construcción de las otras dos terrazas (abiertas y de obra) no se descarta, pero se condiciona a la posibilidad de conseguir los fondos necesarios para acometerlas.

Recibe las noticias de última hora en tu móvil

Únete al canal de Telegram de Palencia en la Red

8 respuestas

  1. Que mala noticia, a mi manera de ver el pantano estaba genial tal y como estaba hasta ahora, que mania con invadir la naturaleza con mas y mas construcciones que no no aportan nada bueno, en fin….ya se a donde no volvere a ir a partir del proximo verano…

    1. Totalmente de acuerdo contigo Laura , el mundo se va a la mierda con tanto proyecto enfocado al mundo depredador del turismo, «la pasta de la mano del capitalismo mandan».

  2. ACAMPADA LIBRE SOSTENIBLE Y REGULADA COMO TODA LA PUTA VIDA. TODO LO BUENO LO TENEIS QUE JODER .
    sí el que monte el restaurante,, que supongo que no será pobre, se queja de poca afluencia de gente … qué? … volvéis a decir a los palentinos que vuelvan? Abríamos pagado algo más al dia para evitar gente que no se portaba bien…contratar seguridad p ejem.

  3. Los de la capital tranquilidad , aún no se ha implantado la tasa por acceso y aparcamiento en la Montaña Palentina pero ya está en trámite . Vais a probar de la misma medicina que implantais vosotros en la capital. Ya está el tema de recogida de setas , pues ahora es el de acceso y aparcamiento , lo mismo que se hace en Irati (Navarra) o el Bosque Encantado (Madrid) Las Lagunas de Ruidera , Parque del Timanfaya…etc…etc…ya vereis nos como cambia el pelo a los de la España Vaciada…..

  4. No está bien meterse en el pantano y bosque para hacer un restaurante o lo que sea,vais a joder todo el entorno con esa obra que solo le beneficia ha alguien con mucho dinero,no hay derecho a joder el entorno que es maravilloso

  5. Genial idea para los que terminen esa horrenda senda de puedan comer un bocata de chopped con una cerveza, que no sé qué necesidad había, yo iba desde Ruesga a Ventanilla el bici de montaña y era un paseo salvaje para eso, bici de montaña. Ahora un restaurante para vender cerveza y poco más (Y en verano porque en invierno se van a comer los mocos), igual lo mantienen un poco los bañistas

  6. Que lastima como se va a echar a perder ese entorno tan bonito y frágil, siempre lo mismo para beneficio de unos pocos, todo se llenará de basura, exceso de gente y ruidos que expantaran a los animales.Junto con los incendios,no nos van a quedar ni piedras.

Deja una respuesta

Tu dirección de correo electrónico no será publicada. Los campos obligatorios están marcados con *

Artículos relacionados

Noticias más vistas:

Palencia en la Red
Resumen de privacidad

Esta web utiliza cookies para que podamos ofrecerte la mejor experiencia de usuario posible. La información de las cookies se almacena en tu navegador y realiza funciones tales como reconocerte cuando vuelves a nuestra web o ayudar a nuestro equipo a comprender qué secciones de la web encuentras más interesantes y útiles.